Villa Codourey (2009-2010)
SITUATION
Cette villa familiale individuelle en brique et isolation périphérique crépie se situe au centre du village de Lovens, sur la Commune de la Brillaz. Ses habitants bénéficient d’un dégagement visuel en direction des champs et d’une vue imprenable sur les Préalpes fribourgeoises en direction du Sud. Les grandes baies vitrées sur cette façade permettent également de profiter de l’énergie passive du soleil.
CONCEPT
La villa de la famille Codourey a été conçue en fonction de quelques options primordiales de base, à savoir :
- construire en brique, avec un aspect crépi à l’extérieur
- obtenir le label Minergie, ce qui implique notamment une excellente isolation thermique globale, avec des vitrages sélectifs très performants en particulier pour les grandes ouvertures, ainsi qu’une aération mécanique contrôlée. Une forme compacte avec une organisation intérieure rationnelle et de grands espaces ouverts entre eux ainsi que des systèmes de chauffage faisant appel aux énergies renouvelables complètent ces mesures de bases. L’implantation du garage et local outils au N-E permet encore d’améliorer la protection contre le froid et la bise, y compris pour la terrasse grâce au décalage en plan avec l’habitation.
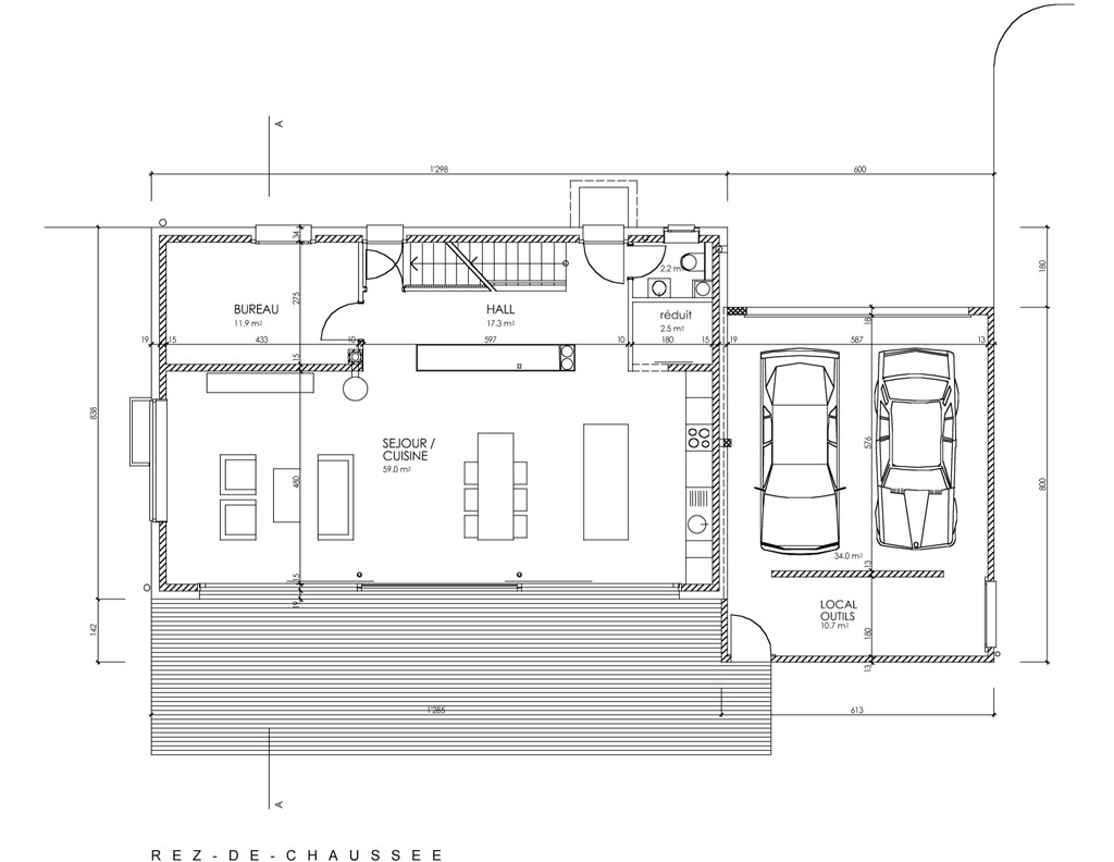
- se fermer au niveau du rez du côté de la route et place d’accès situées au N et s’ouvrir largement du côté du soleil, de la campagne et de la vue sur les Préalpes. Dans ce sens ont été placées une très grande baie vitrée de 22 m2 le long du séjour-cuisine au rez et des fenêtres allant jusqu’au sol devant les chambres à l’étage, agrandissant du même coup l’espace et laissant généreusement pénétrer la lumière du jour.
- excaver entièrement la maison, avec un sous-sol directement accessible depuis l’extérieur
- disposer de grandes armoires intégrées dans les halls, d’un bureau au rez, ainsi que de 2 salles de bain à l’étage, l’une étant réservée aux enfants déjà adolescents
PROGRAMME D’HABITATION
Vous pouvez télécharger ici au format PDF les plans et la coupe de la maison.
DESCRIPTIF SUCCINT
STRUCTURE, ENVELOPPE ET TOITURE
- Murs porteurs en briques TC. Radier, escalier, murs ext. sous-sol et dalles en béton armé.
- Enveloppe porteuse en brique TC 15 cm, isolation périphérique Marmoran « + » ép. 18 cm, crépi ext. 1 cm.
- Composition toiture : dalle bois pleine ép. 14 cm, isolation polyst. extrudé avec pente intégrée ép. moyenne 22 cm, étanchéité bitumineuse bicouche, gravier rond ép. 5-6 cm. Ferblanterie en zinc-titane
- Portes extérieures en bois et MDF, fenêtres et portes-fenêtres en bois/métal, vitrages isolants valeur U = 1,0 w/ m2°k, 0,7 W/m2°k pour la façade Sud-Est.
- Seuils porte et tablettes fenêtres en alu. éloxé naturel. Garde-corps fenêtres ch. en verre.
- Stores ext. à lamelles thermolaquées, 1 store toile int. pour 2e fenêtre ch. 4
INSTALLATIONS TECHNIQUES
- Production de chaleur par pompe à chaleur avec sondes géothermiques prof. 140 m. Env. 5 m2 panneaux solaires pour eau chaude san.
- Monobloc pour aération contrôlée. Distribution par chauffage au sol à basse température (30-35 °c). Système de régulation.
- Equipement des locaux sanitaires :
- buanderie : bac de buanderie, raccordement pour lave-linge
- wc rez : wc suspendu, lavabo
- bains : wc suspendus, meubles-lavabos, 1 baignoire, 2 douches
- Agencement de cuisine complètement équipé : cuisinière vitrocéram et four, hotte ventilation,réfrigérateur, lave-vaisselle.
- Equipement électrique yc câble ethernet + yc raccordement pour 7 moteurs de stores.
- aspirateur centralisé.
AMENAGEMENTS INTERIEURS
- Cloisonnement intérieur en brique TC et carreaux de plâtre crépis, portes intérieures en bois et dérivés du bois.
- Armoires intégrées en MDF peint. Canal de fumée prêt à recevoir un poêle.
- Agencement de cuisine et plan de travail en stratifié. Escaliers rez-étage en béton préfabriqué revêtu de plateaux en bois.
- Revêtement de sol
- sous-sol :
- radier béton taloché propre avec adjuvant étanche pour rangement, buand. et disponible
- chape anhydride ép. 5 cm coulée sur isolation Gonon 2 + 4 cm, carrelage pour hall, liège pour local musique (valeur fourn. 30.-/m2)
- rez-de-chaussée :
- chape anhydride ép. 5 cm coulée sur isolation Go-PU 6 + 2 cm carrelage (valeur fourn. 50.-/m2)
- étage :
- chape anhydride ép. 5 cm coulée sur isolation Gonon ép. 2 cm, revêtement type Pergo ou Quick-step pour hall et chambres (valeur fourn. 40.-/m2)
- locaux sanitaires : carrelage (valeur fourn. 50.-/m2)
- sous-sol :
- Revêtement de parois
- sous-sol : crépi pour hall, brut pour autres locaux
- rez et étage : plâtre lissé avec dispersion mate
- locaux sanitaires : carrelage et plâtre lissé avec dispersion satinée lavable
AMENAGEMENTS EXTERIEURS
- Mise en forme du terrain et des talus soignée, yc mise en place et réglage de tout-venant pour places et terrasses
- Creuse et raccordement pour l’adduction d’eau et l’électricité
- Place d’accès et de parcage avec revêtement de surface en pavés (env. 80 m2)
- Terrasse en bois autoclavé et lames mélèze, yc supports béton
FRAIS SECONDAIRES
- Frais de reproduction de plans et de photocopies
- Frais de mise à l’enquête, yc gabarits et géomètre
- Taxes pour abri P.C., taxes de raccordement pour électricité, adduction d’eau, évacuation eaux claires et usées
- Intérêts intercalaires
SURFACE PLANCHERS HABITABLES BRUTS
- 218 m2 (+ env. 36 m2 isolés mais non chauffés au s-s)
CUBE SIA, yc garage
- Env. 1’100 m3
RECAPITULATION DES FRAIS, SANS TERRAIN (PRIX INDEXES automne 2014)
- Bâtiment : 725 ‘000.-
- Garage pour 2 autos, yc local outils : 60 ‘000.-
- Aménagements extérieurs : 45 ‘000.-
- Frais secondaires : 40 ’000.-
- TOTAL : 870 ‘000.-
- Non compris :
- Frais accessoires d’achat (frais de mutations,…)
- Frais pour constitution d’une cédule hypothécaire
Précision : prix de terrassements pour un terraint dont la nature du sol ne pose pas de problèmes particuliers, sans évacuation ni apport de terre.
