Réalisations

Cette rubrique est complétée régulièrement par d'autres bâtiments réalisés durant ces dernières années. Merci pour votre patience et compréhension.

Agrandissement habitation Benard (2012)

SITUATION

Cet agrandissement en ossature bois préfabriquée avec lames en sapin blanc pré-grisé se trouve sur les hauts du petit village de Bollion dans la Broye fribourgeoise. Les propriétaires bénéficient d’un beau dégagement visuel sur l’autre versant de la petite vallée et la campagne alentour.

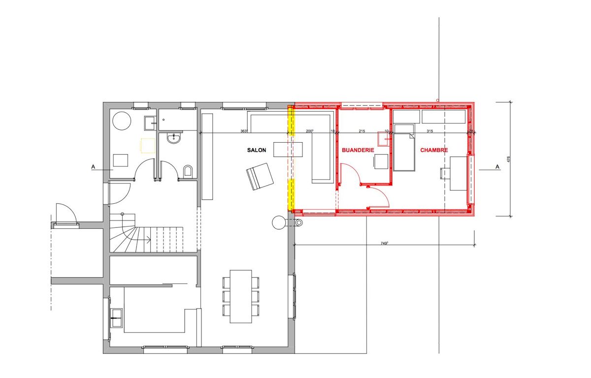
IDEES DIRECTRICES / CONCEPT

La famille Benard désirait agrandir leur habitation afin de pouvoir bénéficier d’une chambre supplémentaire indépendante et d’une nouvelle buanderie avec accès direct à l’extérieur. Ils avaient envie également d’agrandir un peu l’espace du séjour tout en saisissant l’occasion de mettre un revêtement de sol unitaire, ainsi que de profiter du même coup de protéger la terrasse du regard des voisins et du vent.

L’architecte a proposé une construction en ossature bois préfabriquée pour des raisons de rapidité et de précision d’exécution ainsi que pour démarquer clairement la nouvelle intervention de l’existant. Il a également joué avec la pente du terrain aménagé en créant un porte-à-faux dynamique. Une toiture plate ou avec une très faible pente s’est imposée afin de pouvoir gérer le raccord à la façade de manière simple et efficace en-dessous de la toiture existante tout en donnant l’image d’un monolithe précis et fort à l’agrandissement.

 

A l’intérieur la pose d’un DIN au-dessus de l’ouverture créée en façade a été nécessaire pour reprendre les charges à l’angle du bâtiment. La volonté des propriétaires et de l’architecte était de le mettre en évidence et de le thermolaquer avec la même couleur et aspect que celui déjà présent entre le hall d’entrée et le séjour. La porte-fenêtre et le store enlevés devant le salon ont été récupérés pour la buanderie et une nouvelle fenêtre fixe a été aménagée latéralement dans le coin salon agrandi, apportant également de la lumière au peti corridor de la buanderie et de la chambre.