Villa Perritaz (2008)
SITUATION
Cette villa familiale individuelle en ossature et revêtement bois se situe à la sortie du village d’Arconciel côté Treyvaux, en flanc d’un coteau surplombant les alentours, avec une vue splendide en direction du Sud et du Moléson.
CONCEPT
La volonté de base était de construire en bois avec côté Sud un espace ouvert englobant la cuisine et le séjour avec une grande baie vitrée ainsi qu’un balcon courant le long des chambres à l’étage, produisant du même coup une ombre pour la terrasse et la baie. En faisant appel à des verres sélectifs contre l’échauffement par le soleil, on a ainsi même pu se passer de stores extérieurs. De plus, le « challenge » était d’arriver à satisfaire avec un budget serré un programme conséquent avec 4 chambres à coucher, 2 salles de bain et un dressing à l’étage, ainsi qu’un coin tv fermé et un bureau en plus du séjour/ cuisine et wc au rez. Le décrochement d’un mètre à l’arrière de l’habitation a permis de placer le coin tv et le bureau, de même que la salle de bain privative et le dressing des parents tout en créant un jeu de volumes accentué par 2 teintes différentes en façade.
Afin de garder élégance et légèreté, l’architecte a fait appel à des fers plats thermolaqués pour le garde-corps du balcon sur la façade Sud, ce dernier étant suspendu par des tirans métalliques à l’avant-toit le recouvrant, ceux-ci permettant également de libérer le sol de tout pilier et de faire l’économie de coûteuses fondations isolées. Les ouvertures en façade ont été placées selon des points de vue privilégiés et différenciés sur les très beaux paysages alentours, constituant des tableaux naturels changeant au gré des jours et des saisons. Afin de jouir au mieux notamment de la magnifique vue sur les collines et les montagnes, une autre volonté était de situer la maison assez haut dans le terrain, tout en gérant au mieux la forte pente naturelle. Dans ce sens, le couvert à voiture et outils/ vélos a été placé en contrebas le long de la route, créant du même coup une certaine privacité par rapport à la route de quartier et de bénéficier d’une belle surface de pelouse en pente douce devant la terrasse en bois.
PROGRAMME D’HABITATION
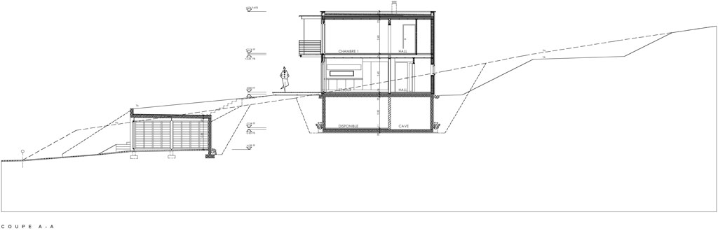
Vous pouvez télécharger au format PDF les plans et la coupe de la villa.
Vous pouvez également consulter le site de famille Perritaz, sous la rubrique « Homelink »
DESCRIPTIF SUCCINT
STRUCTURE, ENVELOPPE ET TOITURE
- Ossature porteuse en bois lamellé-collé posée sur dalle et radier en béton armé.
- Composition enveloppe : depuis l’intérieur, panneaux placo-plâtre ép. 12,5 mm, panneaux OSB ép. 15 mm contre ossature, isolation laine minérale 12 cm entre ossature, coupe-vent isolant en fibre végétale ép. 52 mm, lambourdage de ventilation 30 mm, revêtement extérieur en lames sapin peintes +brutes de sciage ép. 24 mm posées verticalement.
- Composition toiture : panneaux 3 plis sapin 19 mm, lambourdage 24 mm, pare-vapeur, isolation laine minérale entre chevrons ép. 180 mm, isolation minérale ou végétale ép. 40 mm sur chevrons, vide pour aération entre 3 et 10 cm, panneaux type OSB ép. 25 mm, étanchéité bicouche bitumineuse ép. env. 10 mm, gravier ép. 5-6 cm , ferblanterie en zinc-titane.
- Porte extérieure bois-métal, fenêtres et portes-fenêtres en bois/métal + vitrages isolants, en PVC au s-s.
- Seuils portes-fenêtres et tablettes fenêtres en aluminium éloxé naturel.
- Stores extérieurs à lamelles thermolaquées, 1 store toile int. pour 2e fenêtre ch. parents
INSTALLATIONS TECHNIQUES
- Production de chaleur par pompe à chaleur avec sondes géothermiques prof. 135 m. Appoint électrique pour eau chaude sanitaire
- Distribution par chauffage au sol et radiateurs à basse température (30-35°c).
- Système de régulation. Kit solaire pour eau chaude sanitaire.
- Equipement des locaux sanitaires
- buanderie : bac de buanderie et raccordement lave-linge
- wc entrée : wc mural, lavabo
- bains : 2 wc muraux, 2 lavabos dont 1 double, baignoire 180 x 85 cm, 2 douches 80 x 100 cm
- Agencement de cuisine complètement équipé : cuisinière avec vitrocéram, four, hotte ventilation, réfrigérateur, lave-vaisselle.
- Equipement électrique usuel, yc raccord. Internet dans bureau et chambres + yc spots hall entrée
AMENAGEMENTS INTERIEURS
- Cloisons intérieures avec chassis métallique 6/12 cm et 6/6 cm, isolation 60 ou 120 mm et 2 faces en panneaux placo-plâtre 12,5 mm.
- Portes intérieures en bois peint, armoires intégrées en mélaminé blanc et MDF peint.
- Canal de fumée prêt à recevoir un poêle
- Agencement de cuisine et plan de travail en stratifié.
- Escalier en bois avec marches en chêne.
- Plafonds en panneaux 3 plis ép. 19 mm.
- Revêtement de sol
- sous-sol :
- chape liquide ép. 50 mm coulée sur isolation type Gonon ép. 40 + 20 mm , carrelage dans hall (valeur fourn. 30.-/m2) et le local technique/buanderie
- radier béton taloché propre avec adjuvant étanche pour cave
- rez-de-chaussée :
- chape liquide ép. 50 mm coulée sur isolation type Gonon ép. 60 + 20 mm, carrelage (valeur fourn. 45.-/m2)
- étage :
- chape liquide ép. 50 mm coulée sur isolation type Gonon ép. 20 mm, carrelage dans zones d’eau, parquet chêne ailleurs (valeur fourn. 50.-/m2)
- sous-sol :
- Revêtement de paroi :
- sous-sol : brut + dispersioncloisons intérieures : plâtre lissé et dispersion sur panneaux placo-plâtre
- locaux sanitaires : carrelage et plâtre lissé avec dispersion lavable sur panneaux plâtre hydro
- murs périphériques : crépi ou plâtre lissé et dispersion sur panneaux placo-plâtre
AMENAGEMENTS EXTERIEURS
- Mise en forme du terrain et des talus soignée, yc murs de soutènement et mise en place de tout-venant pour place d’accès
- Creuse et raccordement pour l’adduction d’eau et l’électricité
- Place d’accès et de parcage avec revêtement de surface en bitume (env. 100 m2)
- Terrasses en lames mélèze sur poutraison de support (env. 25 m2)
- Couvert à voitures et vélos/outils env. 45 m2 semi-enterré en béton, yc étanchéité et drainages
- Engazonnement des pelouses, sans plantations ni clôtures
FRAIS SECONDAIRES
- Frais de reproduction de plans et de photocopies
- Frais de mise à l’enquête, yc gabarits et géomètre
- Taxes pour abri P.C., taxes de raccordement pour électricité, adduction d’eau, évacuation eaux claires et usées Intérêts intercalaires et certificat de conformité du géomètre
SURFACE PLANCHERS HABITABLES BRUTS
- 220 m2 (sans compter disponible isolé au s-s)
CUBE SIA, yc abri ext.
- 940 m3 (sans compter abri voiture et outils)
RECAPITULATION DES FRAIS, SANS TERRAIN ( PRIX INDEXES automne 2014)
- Bâtiment : 670’000.–
- Aménagements extérieurs, yc couvert à voitures et vélos/ outils (cf descriptif) : 80’000.
- Frais secondaires, yc intérêts intercalaires et imprévus : 40’000.
- TOTAL : 790’000.–
- Non compris :
- Frais accessoires d’achat
- Frais pour constitution d’une cédule hypothécaire
Précision : prix de terrassements pour un terrain dont la nature du sol ne pose pas de problèmes particuliers, sans évacuation ni apport de terre.
